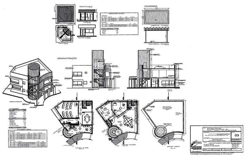
Projeto PHE - ZEN

Tipo: Instalação Administrativa

Cliente: PHE Comércio e Representações Ltda.

Arquitetura: Vera Gomes

ATC: 255,00m²

Local: ZEN - Zona Especial de Negócios em Rio das Ostras - RJ

Ano: 2006

© 2014 Arqui & Ar - Projeto e Consultoria Ltda.