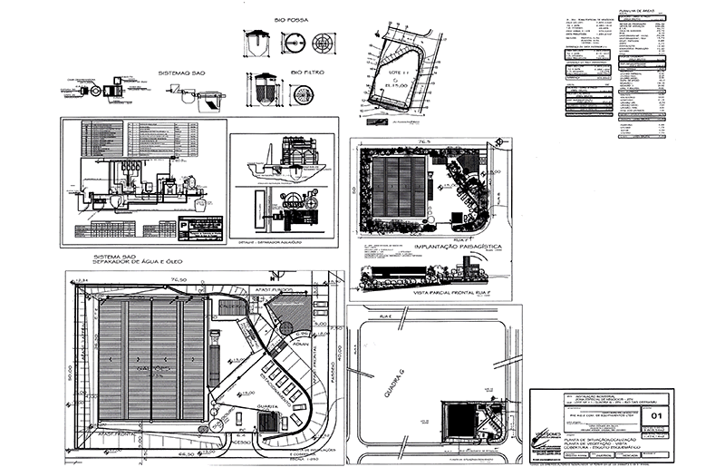
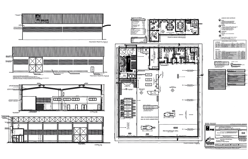
Projeto PHE - ZEN

Tipo: Instalações Industriais - Serviço

Cliente: PHE Comércio e Representações Ltda.

Arquitetura: Vera Gomes

ATC: 1161,60m²

Local: ZEN - Zona Especial de Negócios em Rio das Ostras - RJ

Projeto e Construção: 2004-2006

© 2014 Arqui & Ar - Projeto e Consultoria Ltda.