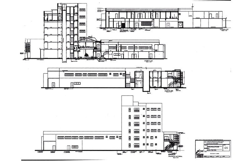
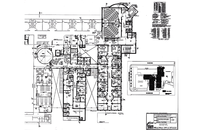
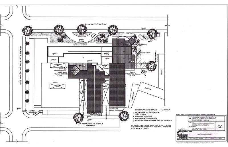
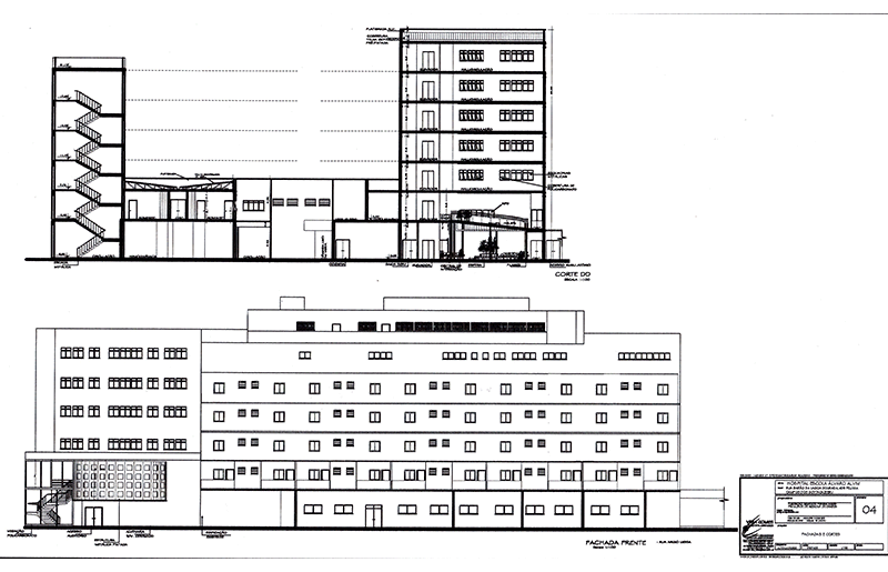
Hospital Escola Álvaro Alvim - HEAA

Tipo: Hospital Escola

Cliente: Fundação Benedito Pereira Nunes - Faculdade de Medicina de Campos

Arquitetura: Vera Gomes

ATP: 1.506,25m²

Local: Campos dos Goytacazes - RJ

Projeto: 2002

© 2014 Arqui & Ar - Projeto e Consultoria Ltda.