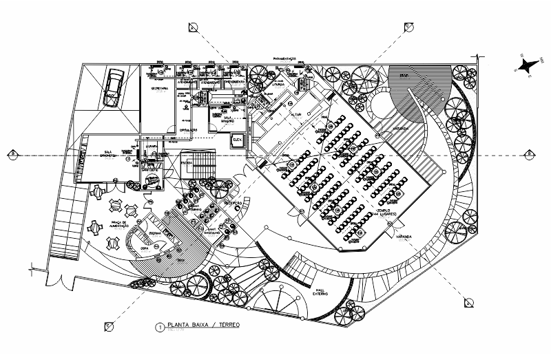
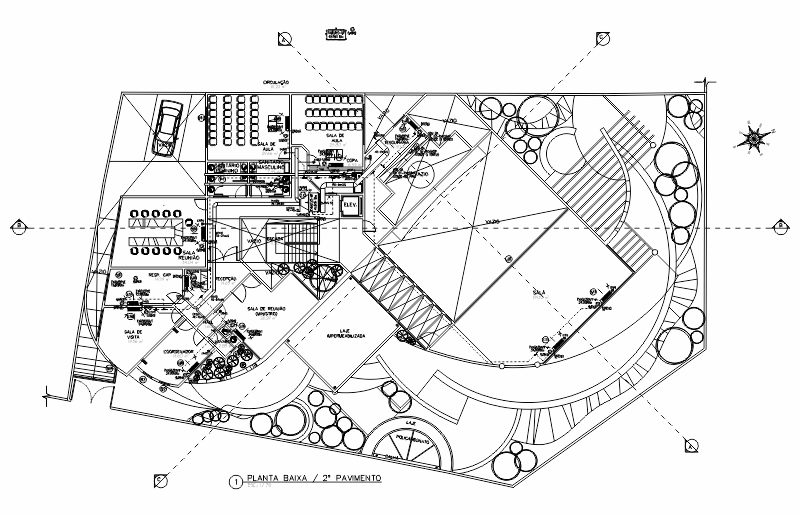
Projeto Igreja MESSIÂNICA

Tipo: Igreja

Cliente: Igreja Messiânica

Projeto e Instalação de Sistema de Ar Condicionado

Local: Campos dos Goytacazes - RJ

Ano:2013

© 2014 Arqui & Ar - Projeto e Consultoria Ltda.